
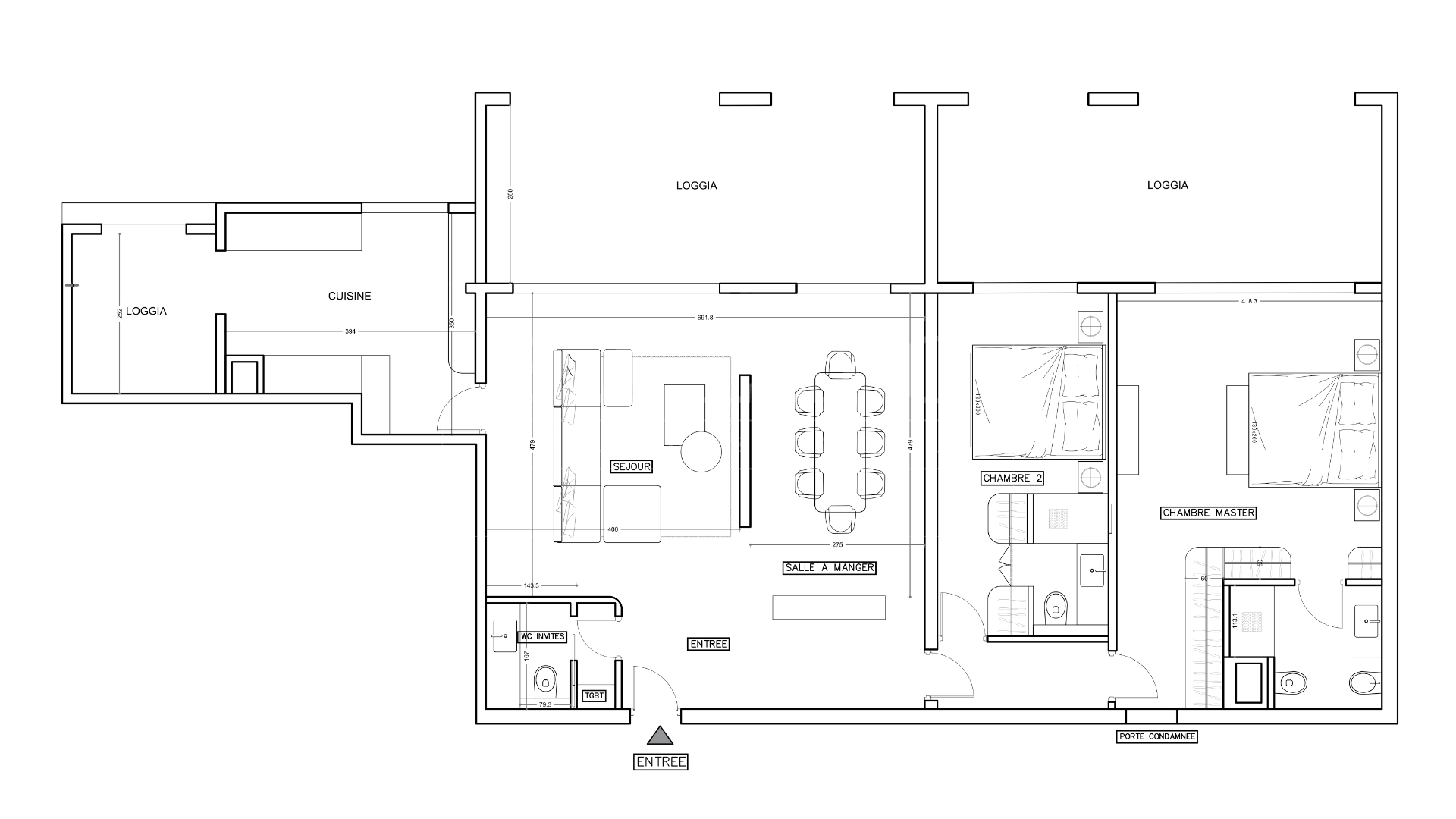
Within the Rosa Maris residence in Fontvieille, this project brings together two one-bedroom apartments to be combined into a single home. The open space provides excellent natural light throughout. The reception rooms open onto several loggias and enjoy a partial sea view, framed by Fontvieille’s greenery and the coastal horizon.
The project offers the opportunity to create a bespoke interior to the standard expected in Monaco. The residence provides concierge service and security, as well as an outdoor swimming pool, while the location places you moments from the sea, the port, and the neighbourhood’s shops and restaurants.

Enquiries
Our team is available to arrange a private viewing or answer any questions about this property.